Het aardingsbeveiligingsapparaat voor de nulpuntsafstand van de GW13-serie, geproduceerd door Lugao, is ontworpen om de isolatie van het neutrale punt van de transformator te beschermen tegen overspanning door bliksem, schakeloverspanning en overspanning op de netfrequentie (transiënte). Lugao beschikt over professionele productieapparatuur en een rijke exportervaring, en de aanwezige inventaris kan snel worden geleverd.
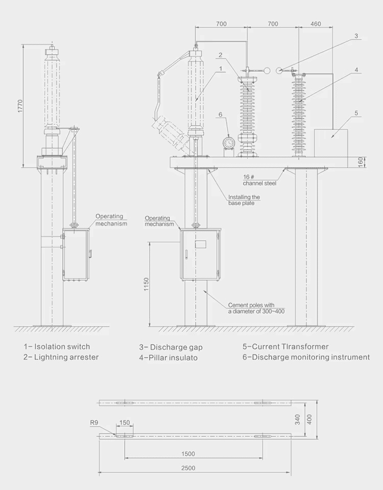
De overspanningsbeveiligingen voor neutrale punten uit de GW13-serie van Lugao worden voornamelijk gebruikt in de neutrale puntcircuits van 110 kV- en 220 kV-vermogenstransformatoren. Ze beschermen de nulpuntisolatie van de transformator tegen overspanningsschade en zorgen ervoor dat de transformator kan schakelen tussen geaarde en niet-geaarde neutrale puntbedrijfsmodi. Wanneer gelijktijdige bescherming tegen bliksem, netfrequentie en schakeloverspanningen vereist is, kunnen ter bescherming een opening en een afleider parallel worden aangesloten. De overspanningsbeveiliging voor het neutrale punt uit de GW13-serie is een complete set met een scheider, zinkoxide-afleider, ontladingsopening en stroomtransformator. Het beschikt over een hoge thermische capaciteit en uitstekende bescherming, flexibele configuraties en gebruiksgemak. Er kan worden gekozen voor een puur spleetontwerp of een combinatie van scheider en ontladingsspleet om aan de behoeften van de gebruiker te voldoen.
GW13-bescherming Technische specificaties van het apparaat
| Het |
Eenheid |
Argument |
||
| Productmodel |
|
Lugao-gw13-110 |
Lugao-gw13-220 |
|
| Nominale spanning |
Kv |
110 | 220 | |
| Transformator neutraal is bestand tegen spanning |
Bliksem vol en snijbestendig spanning (piek) |
Kv |
250 | 400 |
| 1min stroomfrequentie (effectieve waarde) |
Kv |
95 | 200 | |
| Neutrale scheidingsschakelaar |
Nominale stroom |
A | 630 | 630 |
| Bedieningsmechanisme |
|
CS14G (handmatig) of CJ2 (elektrisch) |
||
| Zinkoxide-afleider |
Nominale spanning (RMS) |
Kv |
72 | 144 |
| Continue bedrijfsspanning |
Kv |
58 | 116 | |
| Dc 1mA referentiespanning |
Kv |
103 | 205 | |
| Restspanning van bliksemimpulsstroom |
Kv |
186 | 320 | |
| Afvoeropening |
Afstandselektrodeafstandsbereik |
mm | 90-150 | 220-320 |
| Stroomfrequentie ontladingsspanningsbereik |
Kv |
50-83 | 100-166 | |
| 1,2/50us impulsontladingsspanning |
Kv |
120-190 | 250-320 | |
| Huidige transformator |
Type |
|
Epoxyhars gegoten volledig gesloten zuil type 10kv |
|
| Transformatie verhouding |
|
100/5.200/5.300/5.40015.50015.600/5 |
||
